WingLine L taiteovijärjestelmällä ovet liikkuvat joustavasti kuin siivet, nopeasti ja symmetrisesti koukkuun kaapin sivuille pois tieltä. Taiteovilla saadaan kaapistojen suunnittelulle lisää vapautta, helposti ja nopeasti. WingLinen avulla koko kaapin tai komeron sisältö on näkyvillä ja käsillä eikä osa sisällöstä jää piiloon kuten liukuovilla toteutettaessa.
HUOM! Pyörästön kätisyys määräytyy sen mukaan kumpaan suuntaan ovet jäävät edestä katsottuna auki asennossa. Esimerkiksi pääkuvassa pyörästöjen kätisyys on oikea.
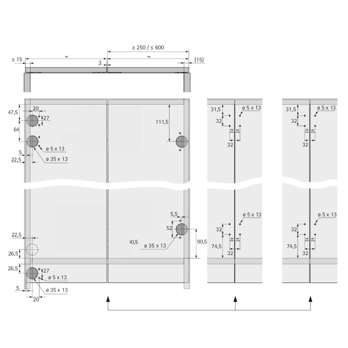
Puisille oville, joiden vahvuus 16-25mm.
Profiilien materiaali: Alumiini
Tarkista tarvittavat osat uuteen Wingline L valikoimaan "Wingline L antrasiitti uudistunut rakenne ja ohje" PDF-tiedostosta (alla).
|

|
WingLine L, esite ja asennusohje
|
|

|
WingLine L
|
|

|
WingLine L asennus yläkiskolla
|
|

|
WingLine L antrasiitti uudistunut rakenne ja ohje
|